Trilocale in vendita

Senago, Via Mascagni
€ 269.000
3 locali 3 locali
91 Mq 91 Mq
1 bagno 1 bagno

Trilocale in vendita

Senago, Via Mascagni

Descrizione annuncio

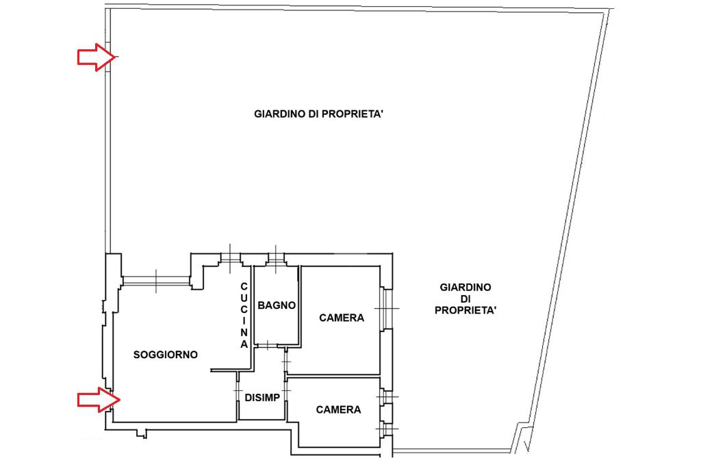
Senago confini Garbagnate Milanese, in contesto residenziale del 2017 in Classe Energetica A1, proponiamo in vendita appartamento di TRE LOCALI con Giardino Privato.
L'abitazione è al piano terra e prevede l'ingresso diretto sulla zona giorno e un secondo ingresso privato indipendente sul giardino.

La zona living ha la cucina a vista ed ha affaccio al giardino di proprietà di circa 250 mq. Un disimpegno con ripostiglio a muro, camera matrimoniale, seconda camera e bagno finestrato con doccia e spazio lavatrice.

Riscaldamento centralizzato a pavimento, a gestione autonoma tramite cronotermostato, aria condizionata zona giorno/notte, tapparelle motorizzate: tutto gestibile tramite domotica. Porta blindata, infissi in legno a doppio vetro, zanzariere, pavimenti in gres porcellanato effetto legno, antifurto perimetrale con videosorveglianza. Impianto d'irrigazione automatica, videocitofono. Impianto fotovoltaico per alimentazione servizi delle parti comuni (luce scala, ascensore e corrente elettrica).


Completo di cantina e box auto 16 mq. con basculante motorizzata.
La palazzina ospita 12 famiglie e i due punti di forza di questo appartamento sono l'area esterna privata che ospita anche una esclusiva piscina e il contesto verdeggiante e silenzioso.
Tempi di consegna DICEMBRE 2026.

Mostra tutto

Nelle vicinanze

Trasporto pubblico Trasporto pubblico
Garbagnate Milanese
Garbagnate Milanese
1,7 Km
Bollate Nord
Bollate Nord
2,6 Km
Trasporto pubblico
600 m
Via De Gasperi - Via Londra (Senago)
Via De Gasperi - Via Londra (Senago)
1,4 Km
Garbagnate Parco delle Groane
Garbagnate Parco delle Groane
890 m
Ricariche auto elettriche Ricariche auto elettriche
LIMBIATE XXV Aprile | BECHARGE
2,4 Km
Scuole Scuole
Scuole
1,2 Km
Scuola Primaria Carlo Collodi
1,9 Km
Scuola Elementare Karol Wojtyla
2,1 Km
Scuola elementare Manzoni
2,4 Km
Scuola media Elsa Morante
2,5 Km
Farmacia Farmacia
Europa
2,1 Km
Farmacia
2,6 Km
Farmacia
2,8 Km
Ospedali Ospedali
Ospedale Guido Salvini
950 m
Casa Riposo S. Pertini
2,0 Km
Supermercati Supermercati
Carrefour Market
1,5 Km
Esselunga di Santa Maria Rossa
2,1 Km
Supermercati
2,2 Km
Euro Spin
2,4 Km
Famila
2,5 Km
Negozi Negozi
Negozi
2,0 Km
Bar Bar
Bar
2,0 Km
Number One
2,9 Km
Ristoranti Ristoranti
Le Antiche Ruote
670 m
La Muraglia
1,8 Km
Osteria I 4 Leoni
1,9 Km
Ristoranti
2,0 Km
Bar Trattoria Cascina Traversagna
2,2 Km
Mostra tutto

Caratteristiche

Rif.:
61182649
Piano:
Terra di 2 con ascensore
Totale piani:
2
Box:
1
Camere da letto:
2
Arredamento:
Assente
Mostra tutto
Prezzo Prezzo
€ 269.000
Rata mutuo Rata mutuo
€ 1.268 / mese
Spese annue Spese annue
€ 3.000
Proponi il tuo prezzoProponi il tuo prezzo

Classe Energetica

A1
A1
A1
A1
A1
A1
A1
A1
A1
EP globale non rinnovabile:
62.74 kW h/m² anno
EP globale rinnovabile:
0.00 kW h/m² anno
EP invernale del fabbricato:
EP estiva del fabbricato:
Anno di costruzione:
2017
Riscaldamento:
Centralizzato
Tipo impianto:
A pavimento
Tipo alimentazione:
Metano

Ti interessa visionare l'immobile?

Fissa un appuntamento  Fissa un appuntamento

Richiedi informazioni

Clicca su Leggi per aprire l'informativa
* Questi campi sono obbligatori

Calcola il tuo mutuo

Semplice e senza impegno
Anticipo

( % )
Mutuo

( % )

pochi semplici passi

inserisci i tuoi dati
Questionario completato
Grazie per aver richiesto un appuntamento senza impegno con un nostro Consulente del Credito e Assicurativo.

Hai inserito correttamente tutti i dati necessari e a breve riceverai una e-mail con un link da convalidare per inviare i tuoi dati.
Affiliato
Alma Immobiliare Sas
Largo Garibaldi, 11 20030 Senago (MI)
Largo Garibaldi, 11 20030 Senago (MI)
Zona: Senago
Mostra su mappa
Orari: Dal Lunedi al Venerdi 9.00 - 12.30 / 14.30 - 20.00 Sabato 9.00 - 12.30 / 14.30 - 18.00
Affiliato
Alma Immobiliare Sas
Largo Garibaldi, 11 20030 Senago (MI)

2026 Tecnocasa Franchising S.p.A. - P. IVA 08365160152 - Via Monte Bianco 60/A 20089 Rozzano (MI). Ogni agenzia ha un proprio titolare ed è autonoma. Privacy policy | Policy utilizzo | Cookie policy