Bilocale in vendita

Senago, Via XXIV Maggio
€ 289.000
2 locali 2 locali
120 Mq 120 Mq
1 bagno 1 bagno

Bilocale in vendita

Senago, Via XXIV Maggio

Descrizione annuncio

Nel contesto più esclusivo di Senago, all’interno del rinomato Residence 'Villa degli Occhi', proponiamo in vendita una soluzione abitativa unica nel suo genere, in classe energetica A3.

Immerso in un ambiente residenziale da favola, arricchito da un suggestivo parco condominiale con piscina, questo elegante appartamento di due locali con taverna e giardino privato rappresenta la perfetta combinazione di comfort, privacy e raffinatezza.

L’abitazione si apre su una luminosa zona living con cucina a penisola, caratterizzata da un doppio accesso fronte e retro al meraviglioso giardino privato di circa 130 mq, ideale per momenti di relax all’aperto. Un comodo disimpegno con ripostiglio a muro-lavanderia conduce alla zona notte, composta da una spaziosa camera matrimoniale con cabina armadio e un bagno con sanitari sospesi e doccia dotato di porta-finestra con accesso diretto al giardino.

Una scenografica scala interna con vetrata collega al piano inferiore, dove troviamo una versatile taverna perfettamente organizzata come salotto, sala da pranzo per ospiti e zona studio.
Serramenti a doppi vetri e persiane esterne in legno, riscaldamento centralizzato a pavimento, impianto di climatizzazione, deumidificazione e raffrescamento, pavimenti in gres porcellanato effetto legno, videocitofono e allarme 'verisure'.

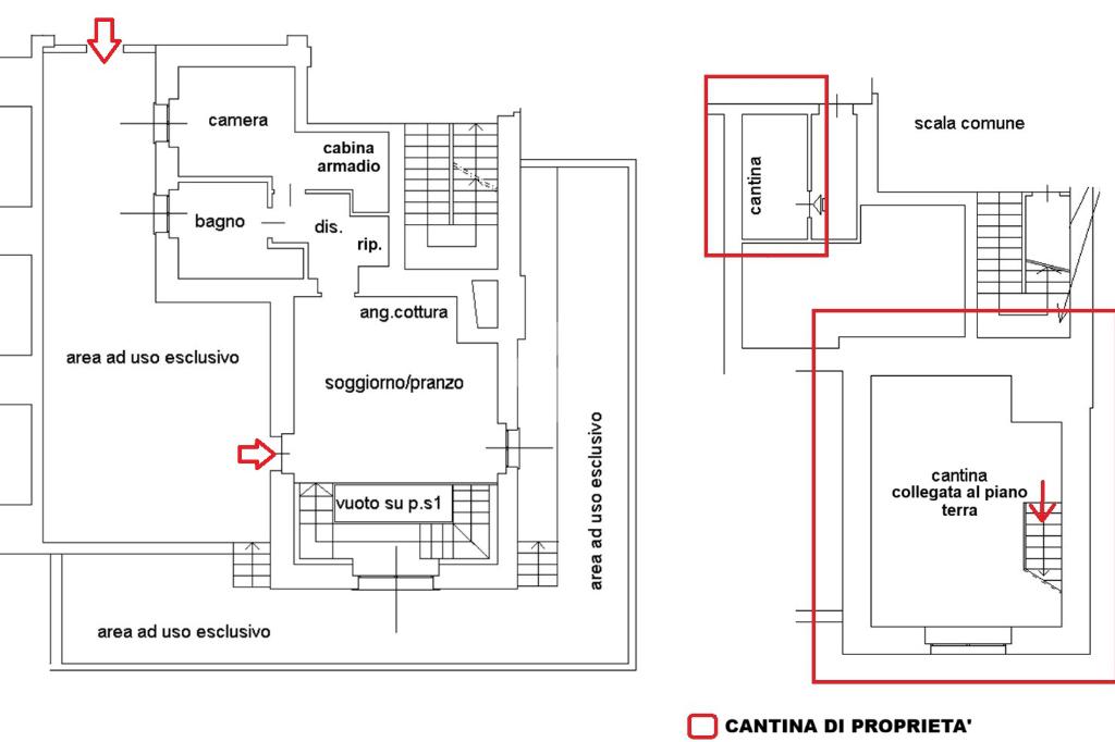
Completano la proprietà una cantina e un box auto doppio inclusi nel prezzo. Possibilità di acquistare un secondo box auto a parte.

Una soluzione ideale per chi cerca eleganza, tranquillità e qualità della vita in un contesto esclusivo.

Mostra tutto

Nelle vicinanze

Trasporto pubblico Trasporto pubblico
Bollate Nord
Bollate Nord
2,6 Km
Garbagnate Milanese
Garbagnate Milanese
2,8 Km
Via Castelletto - Via Volta (Castelletto)
Via Castelletto - Via Volta (Castelletto)
2,4 Km
Via Reali (Cascina Amata) (Paderno Dugnano)
Via Reali (Cascina Amata) (Paderno Dugnano)
2,4 Km
Piazza Borromeo (Senago)
Piazza Borromeo (Senago)
290 m
Ricariche auto elettriche Ricariche auto elettriche
LIMBIATE XXV Aprile | BECHARGE
1,9 Km
LIMBIATE Buozzi | BECHARGE
2,6 Km
Scuole Scuole
Scuole
140 m
Scuola elementare Manzoni
1,3 Km
Scuola Primaria Carlo Collodi
1,4 Km
Scuola elementare Madre Teresa di Calcutta
1,6 Km
Oratorio Don Bosco
1,9 Km
Farmacia Farmacia
Europa
1,5 Km
Farmacia
1,7 Km
Nuova
2,3 Km
Farmacia Don Bosco
2,5 Km
Sant'Antonio
2,6 Km
Ospedali Ospedali
Ospedale Guido Salvini
1,8 Km
Supermercati Supermercati
Carrefour Market
820 m
Famila
1,4 Km
Euro Spin
1,8 Km
U2
2,8 Km
Cooperativa
2,8 Km
Negozi Negozi
Bazar Milleidee
2,4 Km
Negozi
2,4 Km
Bar Bar
Bar
1,8 Km
Ristoranti Ristoranti
Le Antiche Ruote
1,1 Km
Ristoranti
1,9 Km
Bar Trattoria Cascina Traversagna
2,0 Km
Osteria I 4 Leoni
2,5 Km
PizzaRound no limits
2,5 Km
Mostra tutto

Caratteristiche

Rif.:
61199338
Piano:
Terra con giardino di 2
Totale piani:
2
Box:
1
Camere da letto:
1
Arredamento:
Assente
Mostra tutto
Prezzo Prezzo
€ 289.000
Rata mutuo Rata mutuo
€ 1.373 / mese
Spese annue Spese annue
€ 5.000
Proponi il tuo prezzoProponi il tuo prezzo
Immobile valutato con T·Valuta

Classe Energetica

A3
A3
A3
A3
A3
A3
A3
A3
A3
EP globale non rinnovabile:
66.16 kW h/m² anno
EP globale rinnovabile:
147.55 kW h/m² anno
EP invernale del fabbricato:
EP estiva del fabbricato:
Anno di costruzione:
2005
Riscaldamento:
Centralizzato
Tipo impianto:
A pavimento
Tipo alimentazione:
Metano

Ti interessa visionare l'immobile?

Fissa un appuntamento  Fissa un appuntamento

Richiedi informazioni

Clicca su Leggi per aprire l'informativa
* Questi campi sono obbligatori

Calcola il tuo mutuo

Semplice e senza impegno
Anticipo

( % )
Mutuo

( % )

pochi semplici passi

inserisci i tuoi dati
Questionario completato
Grazie per aver richiesto un appuntamento senza impegno con un nostro Consulente del Credito e Assicurativo.

Hai inserito correttamente tutti i dati necessari e a breve riceverai una e-mail con un link da convalidare per inviare i tuoi dati.
Affiliato
Alma Immobiliare Sas
Largo Garibaldi, 11 20030 Senago (MI)
Largo Garibaldi, 11 20030 Senago (MI)
Zona: Senago
Mostra su mappa
Orari: Dal Lunedi al Venerdi 9.00 - 12.30 / 14.30 - 20.00 Sabato 9.00 - 12.30 / 14.30 - 18.00
Affiliato
Alma Immobiliare Sas
Largo Garibaldi, 11 20030 Senago (MI)

2026 Tecnocasa Franchising S.p.A. - P. IVA 08365160152 - Via Monte Bianco 60/A 20089 Rozzano (MI). Ogni agenzia ha un proprio titolare ed è autonoma. Privacy policy | Policy utilizzo | Cookie policy